|
||||||
| 住所 | 敷金 礼金 |
間取り 面積 |
タイプ 構造 |
築年数 | 階/階数 向き |
入居時期 |
|---|---|---|---|---|---|---|
| 京都市伏見区西大黒町 | 15万円 0万円 |
1R 20.93m2 |
アパート 木造 |
築2年 | 3階/3階建 西 |
居住中 |
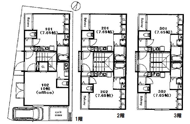
●○●全戸角部屋 インターネット対応(無料Wi-Fi利用可) 各部屋の床はカーペット仕様 ※更新料無しプラン有り(家賃54,000円になります)●○●
【ミナージュ現地レポ】
丹波橋通りと竹田街道(北行)との交差点に立地。総戸数6戸(居住用5戸、事務所1戸)の全戸角部屋。共用部分は雨の日も安心の内階段になっており、各部屋は階段を挟んでお風呂が接しているだけ。居室部分はくっついていないので、お隣の音が気になる方には少し安心材料かと(こればっかりは住んでみないと分かりませんので^^;)。お部屋の中にキッチンがあるタイプなので好みが分かれる可能性あり。記載の帖数よりも有効活用できる部分は狭くなると思います。家具の置き方に工夫が必要ですね。駅まではちょっと距離感じるかもですが、周辺にはお買い物できるところも多いのは魅力的ですよ^^※室内写真は実際のお部屋のものではないですが参考にして下さい。
【周 辺 環 境】
新鮮激安市場伏見丹波橋店67m(徒歩1分)、100円ショップワッツウィズ丹波橋店166m(徒歩3分)、ツルハドラッグ伏見舞台店&ジョイフィット24伏見246m(徒歩4分)、ファミリーマート伏見舞台町店310m(徒歩4分)、万代丹波橋店343m(徒歩5分)、ダックス伏見丹波橋店425m(徒歩6分)
※掲載されている物件データが現状と異なる場合は現状を優先します
地図
|
地図を右クリックでルート検索が可能です。
|
位置情報ご注意:位置情報は精査中の為あくまで参考程度の情報となります。
![]()
- ミナージュ 有限会社ミナミ住宅販売
- TEL:075-605-1138
- FAX:075-605-1132


























































