|
||||||
| 住所 | 敷金 礼金 |
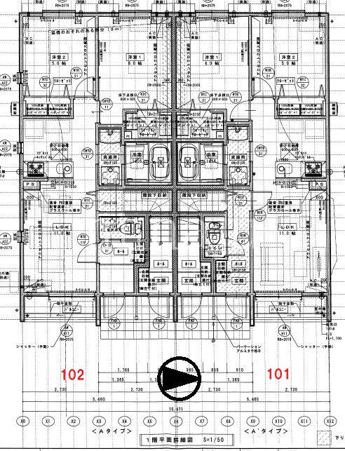
間取り 面積 |
タイプ 構造 |
築年数 | 階/階数 向き |
入居時期 |
|---|---|---|---|---|---|---|
| 京都市伏見区丹波橋町 | 0ヶ月 2ヶ月 |
2LDK 59.59m2 |
アパート 木造 |
築3年 | 2階/2階建 東 |
居住中 |
●○●築浅物件! インターネット無料(SEIWA BB) 設備充実です 伏見板橋小学校区●○●
【ミナージュ現地レポ】
丹波橋通を少し北へ行った住宅街です。駅まではなだらかな坂になっていて距離を感じるかもしれませんが、周辺にはスーパーや100円ショップ、ドラッグストアなどありますのでお買物便利ですよ^^総戸数4戸の全戸角部屋。全戸の玄関が1階部分にある造りということもあり、2階へ上がる階段の足音などは響きやすいかもしれませんので注意が必要です。洋室のウォークインクローゼットなど収納も充実なので、荷物の多い方は有効活用できそうですね^^
【周 辺 環 境】
100円ショップワッツウィズ丹波橋店168m(徒歩3分)、万代丹波橋店173m(徒歩3分)、スギドラッグ伏見丹波橋店242m(徒歩4分)、ダックス伏見丹波橋店249m(徒歩4分)、新鮮激安市場伏見丹波橋店382m(徒歩5分)、ツルハドラッグ伏見舞台店&ジョイフィット24伏見410m(徒歩6分)、京都市立伏見板橋小学校490m(徒歩7分)
※掲載されている物件データが現状と異なる場合は現状を優先します
地図
|
地図を右クリックでルート検索が可能です。
|
位置情報ご注意:位置情報は精査中の為あくまで参考程度の情報となります。
![]()
- ミナージュ 有限会社ミナミ住宅販売
- TEL:075-605-1138
- FAX:075-605-1132














